泡沫消防車作為水罐消防車的補充車型,其滅火效果比水罐消防車滅火效果更廣,那么泡沫消防車上配置的泡沫炮是怎么樣分類的呢?
泡沫消防車消防炮的分類
泡沫消防車一般配置兩用消防車,用字母PL代表,兩用炮是按照口徑的大小來分類,一般有以下幾類:PL24、PL32、PL48最常用的幾種。
兩用炮的圖解
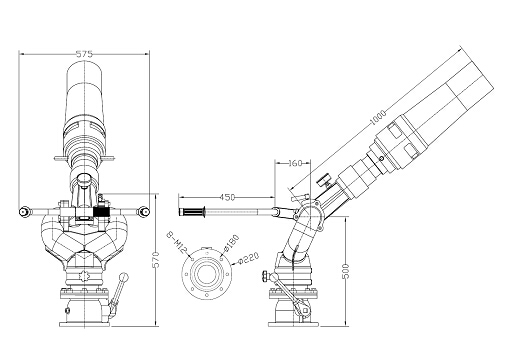
1.PL24型消防炮圖解
PL24型消防炮圖解
PL24型消防炮圖解
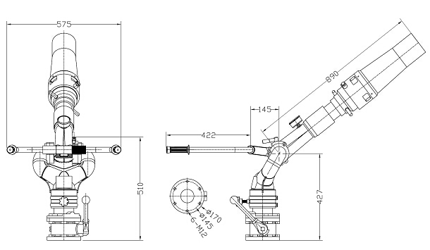
2.PL32型消防炮圖解
PL32型消防炮圖解

PL32型消防炮圖解
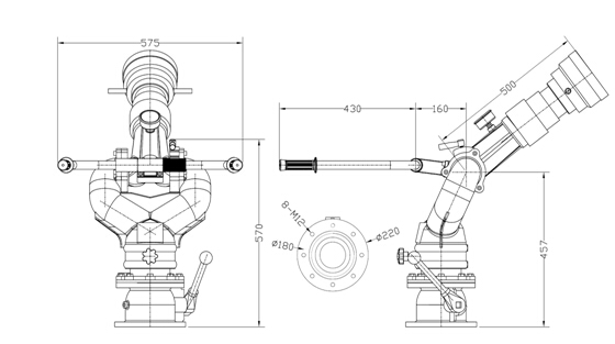
3.PL48消防炮圖解
PL48型消防炮圖解
PL48型消防炮圖解
更多兩用消防炮的詳細參數歡迎來電咨詢:152-7133-5277.
相關評論
來自<東營市>的朋友
價格稍微貴一點,一分錢一分貨,質量確實很好
來自<常德市>的朋友
我們風景區在貴公司采購一臺小型水罐消防車,加裝了一套灑水功能,平時灑灑水,非常實用。
來自<吉林市>的朋友
氣溫低于零下5度就要注意防凍了,低于零下10度就要放入暖房,或者把水放完,不然就會凍裂球閥。
來自<南通市>的朋友
訂車時到貴公司考察了,有實力的消防車企業,放心購買,售后有保障。
來自<東營市>的朋友
水罐消防車,泡沫消防車,滅火的種類不一樣,泡沫消防車滅特殊的火種,石油化工一定要選泡沫消防車。
來自<南通>的朋友
消防車的發貨現場我經歷了,提車時我去了廠家,真是聲勢浩大,一上午發走了11輛消防車。
來自<威海市>的朋友
消防車用是上海茸申的消防泵,成都威斯特的消防炮,都是具有3C認證的產品,質量沒的說,非常好。
來自<常德市>的朋友
買車的時候聽取廠家的意見,泡沫罐采用不銹鋼材質,用了一年多了,泡沫罐完好無損
來自<唐山>的朋友
消防車都有些什么特別的注意事項,尤其是采購消防車的時候,我覺得是主要看廠家的實力,和人員的服務,沒有實力不會造出好產品,人員都不熱情,售后估計也不會好。所以我看上這家了,希望我的眼光是準的,剛買的。